Magnificent Collaborative Work Results in this Modern and Elegant Home

Magnificent Collaborative Work Results in this Modern and Elegant Home

ben January 3, 2018 0

Viviano built Family HQ for his parents, with the help of his mother Catherine, who is an antique collector. With fifteen years of experience in construction, she helped direct and advise the young architect, and the house is her first collaborative project.

Magnificent Collaborative Work Results in this Modern and Elegant Home
Exterior view of the long building

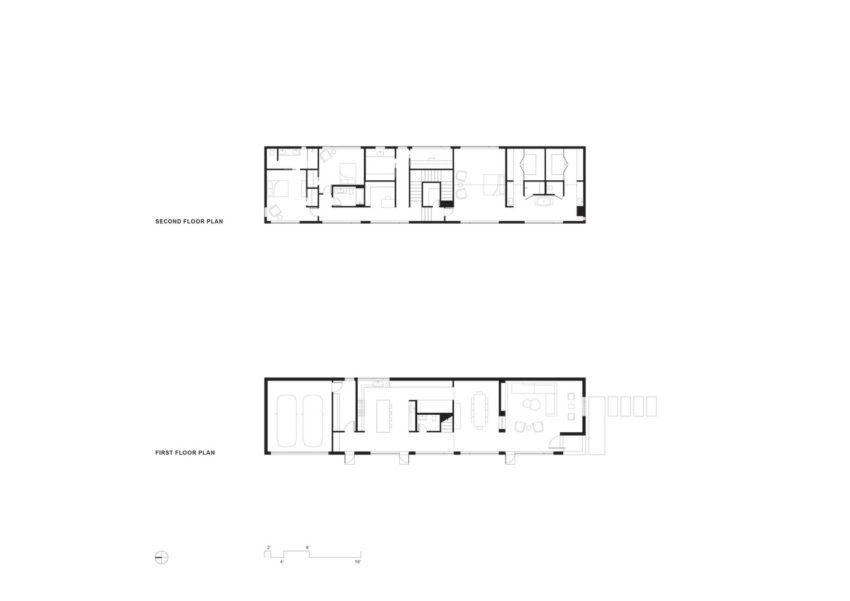
It is located in the city of Houston, Texas, in the United States, on a narrow corner plot. It has two levels and an area of 4,250 square feet (395 square meters). The building is built with concrete bricks stacked and cut to size.

Magnificent Collaborative Work Results in this Modern and Elegant Home
Beautiful garden with green areas
Magnificent Collaborative Work Results in this Modern and Elegant Home
Entrance with glass and black metal door

The interior would be configured as a clean and stylized backdrop to house the old furniture that the couple would take with them, which would be combined with contemporary pieces later on. Large square and rectangular windows are oriented towards the sheltered side garden instead of the street.

Magnificent Collaborative Work Results in this Modern and Elegant Home
Modern living room with electric blue sofa with white armchairs
Magnificent Collaborative Work Results in this Modern and Elegant Home
Modern and elegant living room with contrasting colors

On the ground floor, there is a living room, a dining room, a corridor with storage, and a kitchen. A bathroom and the garage are connected, just beyond the kitchen area. This main floor is designed to focus on entertainment, while the upper floor is more private and traditional. Three bedrooms, two of them with private bathrooms, are located on the top floor. Landscaping helps produce a quiet area. A row of thin silhouette eucalyptus trees creates a screen that softens the relationship with the street.

Magnificent Collaborative Work Results in this Modern and Elegant Home
Small rest area with black wooden chairs
Magnificent Collaborative Work Results in this Modern and Elegant Home
Antique wooden chest
Magnificent Collaborative Work Results in this Modern and Elegant Home
Modern kitchen in white and gray with black marble countertop
Magnificent Collaborative Work Results in this Modern and Elegant Home
Kitchen with island and eating area
Magnificent Collaborative Work Results in this Modern and Elegant Home
Minimalist kitchen with spacious storage
Magnificent Collaborative Work Results in this Modern and Elegant Home
Modern dining room with wooden table and black chairs
Magnificent Collaborative Work Results in this Modern and Elegant Home
White floating furniture complements the dining area
Magnificent Collaborative Work Results in this Modern and Elegant Home
Modern wooden stairs
Magnificent Collaborative Work Results in this Modern and Elegant Home
Bedroom with gray metal bed and wooden floors
Magnificent Collaborative Work Results in this Modern and Elegant Home
Elegant bedroom with canopy bed in black and white
Magnificent Collaborative Work Results in this Modern and Elegant Home
Rest area in the room with white table and modern black chairs
Magnificent Collaborative Work Results in this Modern and Elegant Home
Modern bathroom clad in wood
Magnificent Collaborative Work Results in this Modern and Elegant Home
Modern bathroom in white and gray
Magnificent Collaborative Work Results in this Modern and Elegant Home
Bathroom with wooden floors and white marble walls
Magnificent Collaborative Work Results in this Modern and Elegant Home
Modern bathroom where white predominates
Magnificent Collaborative Work Results in this Modern and Elegant Home
Night view of the main entrance
Magnificent Collaborative Work Results in this Modern and Elegant Home
Exterior view of the facade of the house
Magnificent Collaborative Work Results in this Modern and Elegant Home

Source link

Advertisement