Spacious Rooms Full of Light and Good Taste that Will Amaze You

Spacious Rooms Full of Light and Good Taste that Will Amaze You

ben December 22, 2017 0

This wonderful house with ample spaces filled with light and good taste has been designed by Jeravej Hongsakul, Eakgaluk Sirijariyawat, and Rubporn Sookatub, who form part of the team at the architectural studio IDIN Architects. The home is located in Bangkok, Thailand, and was completed in 2014.

Spacious Rooms Full of Light and Good Taste that Will Amaze You
Exterior view of the modern construction
Spacious Rooms Full of Light and Good Taste that Will Amaze You
Side view of modern white construction

It covers 470 square meters, in which wonderful environments have been created, dominated by wood, glass, and a great influence of white, creating a decorative contrast that is simply spectacular.

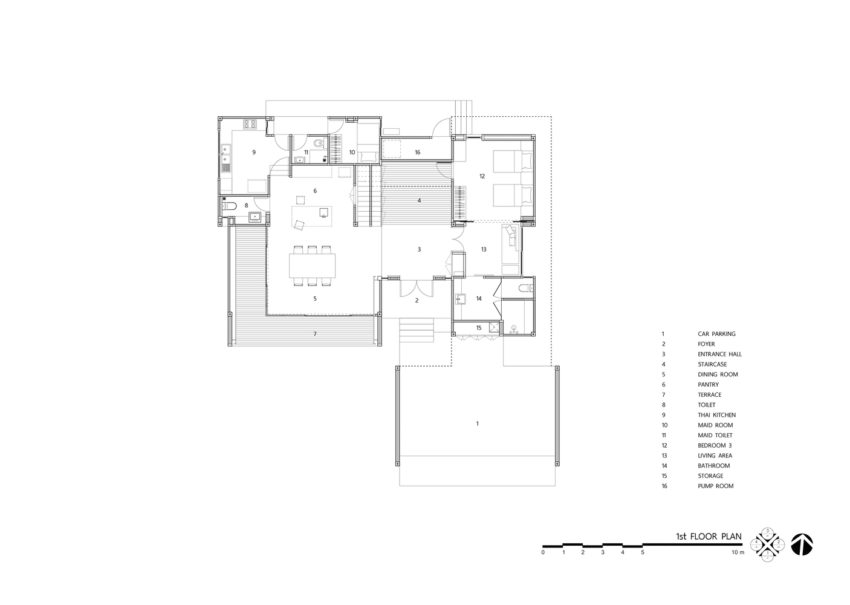
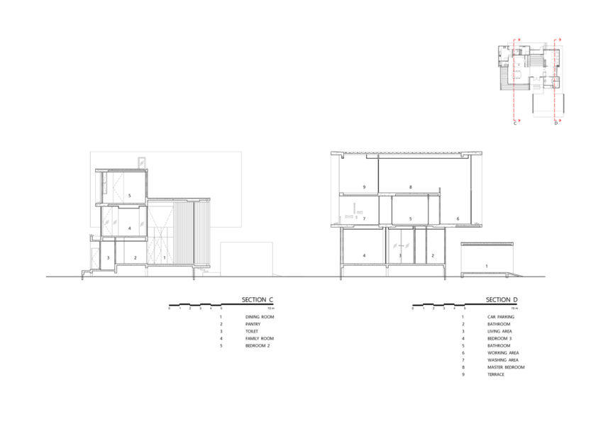
The main common area of ​​this house is the dining room, which can also be used as a work area. The area is enclosed and connected to the terrace, and features double height ceilings for the family room on the upper floor, which also connects to the outdoor terrace. Such an open concept makes it so that everyone is in the house at all times.

Spacious Rooms Full of Light and Good Taste that Will Amaze You
Spacious interior full of natural light
Spacious Rooms Full of Light and Good Taste that Will Amaze You
Large interior with glass walls

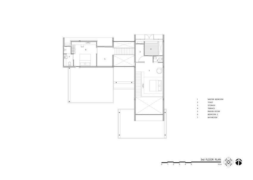
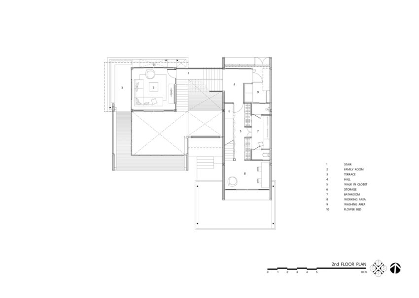
The skylight above the entrance hall allows natural light to flood the space, as well as the stairs that lead to the master bedroom on the second floor and the room and nursery on the third floor. The master bedroom has a private staircase and is on the ground floor (second floor) and the bedroom is on the top floor (third floor).

Spacious Rooms Full of Light and Good Taste that Will Amaze You
Modern TV room with wooden floors and furniture
Spacious Rooms Full of Light and Good Taste that Will Amaze You
TV room with glass walls
Spacious Rooms Full of Light and Good Taste that Will Amaze You
Terrace of the TV area
Spacious Rooms Full of Light and Good Taste that Will Amaze You
Dining room in wood with glass walls
Spacious Rooms Full of Light and Good Taste that Will Amaze You
Dining room with high ceilings and glass and wooden walls
Spacious Rooms Full of Light and Good Taste that Will Amaze You
Modern wooden stairs and glass railings
Spacious Rooms Full of Light and Good Taste that Will Amaze You
Wooden floors and glass walls
Spacious Rooms Full of Light and Good Taste that Will Amaze You
Modern and elegant wooden stairs
Spacious Rooms Full of Light and Good Taste that Will Amaze You
Study area with wooden table and library
Spacious Rooms Full of Light and Good Taste that Will Amaze You
Interior area with wooden floors
Spacious Rooms Full of Light and Good Taste that Will Amaze You
Dining room and kitchens in a modern style
Spacious Rooms Full of Light and Good Taste that Will Amaze You
Large bathroom with wooden floors and black countertop
Spacious Rooms Full of Light and Good Taste that Will Amaze You
Internal view from the garden area
Spacious Rooms Full of Light and Good Taste that Will Amaze You
Exterior night view
Spacious Rooms Full of Light and Good Taste that Will Amaze You
Modern structure at night
Spacious Rooms Full of Light and Good Taste that Will Amaze You
Spacious Rooms Full of Light and Good Taste that Will Amaze You
Spacious Rooms Full of Light and Good Taste that Will Amaze You
Spacious Rooms Full of Light and Good Taste that Will Amaze You
Spacious Rooms Full of Light and Good Taste that Will Amaze You
Spacious Rooms Full of Light and Good Taste that Will Amaze You
Spacious Rooms Full of Light and Good Taste that Will Amaze You

Source link

Advertisement